曹刚律师
河南致13名小学生遇难火灾细节披露,起火宿舍住34人严重超标
发布时间:2025-12-17 作者:曹刚律师网 浏览:186

12月17日,河南省发布方城县英才学校重大火灾事故调查报告。经调查认定,该起事故系起火宿舍内一名小学生使用打火机时,引燃宿舍衣服、床铺等物品并迅速蔓延造成的重大火灾,造成13人遇难、4人受伤。
调查显示,火灾由起火宿舍内一名小学生使用打火机引燃衣物和床铺,迅速蔓延引发。河南省纪检监察机关依规依纪依法,对履职不力、监督管理不到位的25名公职人员作出严肃处理和处分。
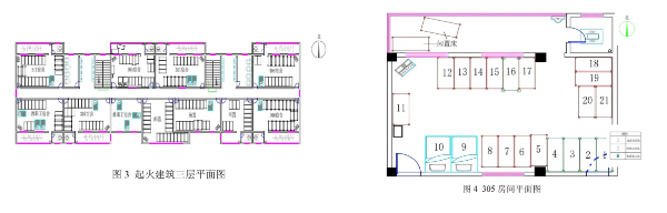
调查报告披露,起火房间为三层 305 房间,建筑面积 83.2 平方米,分住宿、阳台和卫生间三个区域(卫生间未使用)。房间内摆放 19 张双层床和 2 张单人床。上下双层床铺呈大通铺紧密摆放。事发当晚,该房间住有 33 名三年级男学生和1 名宿管员(贾某)。远超“学生宿舍每室居住学生宜为 4—8 人,不应超过 10 人”的标准要求。

调查报告认定,双层床铺紧密摆放加速燃烧,是火灾蔓延原因之一。
调查报告认定,宿舍人员密集,疏散逃生条件差是造成人员死亡原因之一。床铺密集设置,上铺学生须爬梯下床,下铺学生须从床尾爬出,学生上下床不便。起火房间有 2 个疏散门,东侧房门被床铺堵挡,中间床铺起火,部分学生只能穿过着火区域从西侧房门逃生。
据悉,涉事校方李姓、徐姓、贾姓三名嫌犯因涉教育设施重大安全事故罪的案件,将于近期开庭审理。
在调查报告公布前几天,多家媒体聚焦报道了这起火灾事故,指事故发生近两年,官方迟迟未向外界发布调查结果。
涉事孩子的父母透露,自事故发生以来,省、市等各级部门均未向遇难者家属提供书面调查报告,事故原因和经过均由公职人员口述,且家属不得录音录像。当家属询问为何没有书面报告时,被告知因涉及“未成年人”,相关信息不予公开。
第一财经发表评论称,当地部门以《中华人民共和国未成年人保护法》为由拒绝公布的说法站不住脚。《未成年人保护法》第一百零三条规定,公安机关、检察院、法院、司法行政部门及其他组织和个人不得披露案件中未成年人的姓名、影像、住所、就读学校等可识别身份的信息,但规定针对的是案件处理中的未成年人信息保护,而非事故调查结果的公开。

上一条:河南方城县英才学校13死4伤火灾案当庭宣判
下一条:汕头某街道半年两起亡人火灾,属地监管部门面临问责风险
返回列表
联系我们